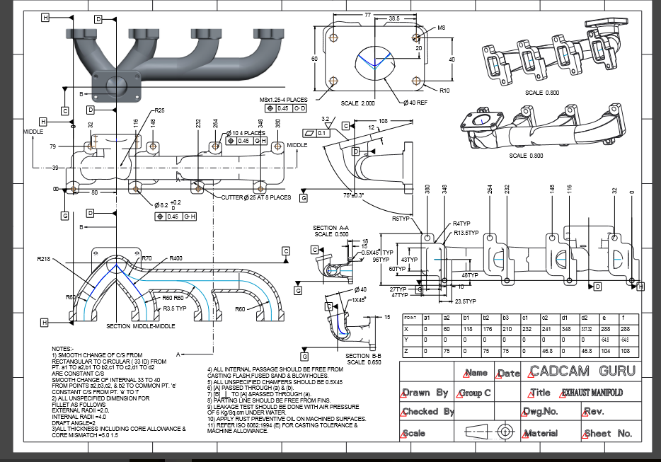
3d Model To 2d Drawing Creo
In this tutorial i will show using creo how you can convert any 3d model file into 2d drawing instantly in which you can find the diifferent views of that model.

3d model to 2d drawing creo. Then you use the backup command to create a copy of the drawing and all models in a new folder. Creo tutorial ball bearing httpswwwyoutubeco. How to create part drawing in creopro e oneplus 8 5g glacial green 6gb ram128gb storage. Automate 3d model to 2d drawing process.
If you like my video plz subscribe my channel. View the full course. Then starting from a fresh creo session open the new copy and rename the drawing and models accordingly. Creo layout is an easy to use 2d cad tool that lets your product design team create detailed concepts in 2d complete with information such as dimensions and annotations.
The best path is to put off the creating of the production copy as long as possible so you have the most mature development model possible. Yes you are right templates gives me the basic views only. But i want only that basic views and trigger the show model annotation for basic dimensions remaining section views and additional dimensioning will add by the team. Go to file new and click.
Creating a 3d model from a 2d drawing with ptc creo direct 30 ptc live global 15 this tutorial is part of a course. You can then produce equally detailed 3d models from the same 2d data without having to switch cad systems or hand off 2d data to 3d cad specialists.






















































































