Naksha 5 Marla House Map 3d Designs Samples
Get approve your drawing with respective housing society make your house and building interior and exterior solution.
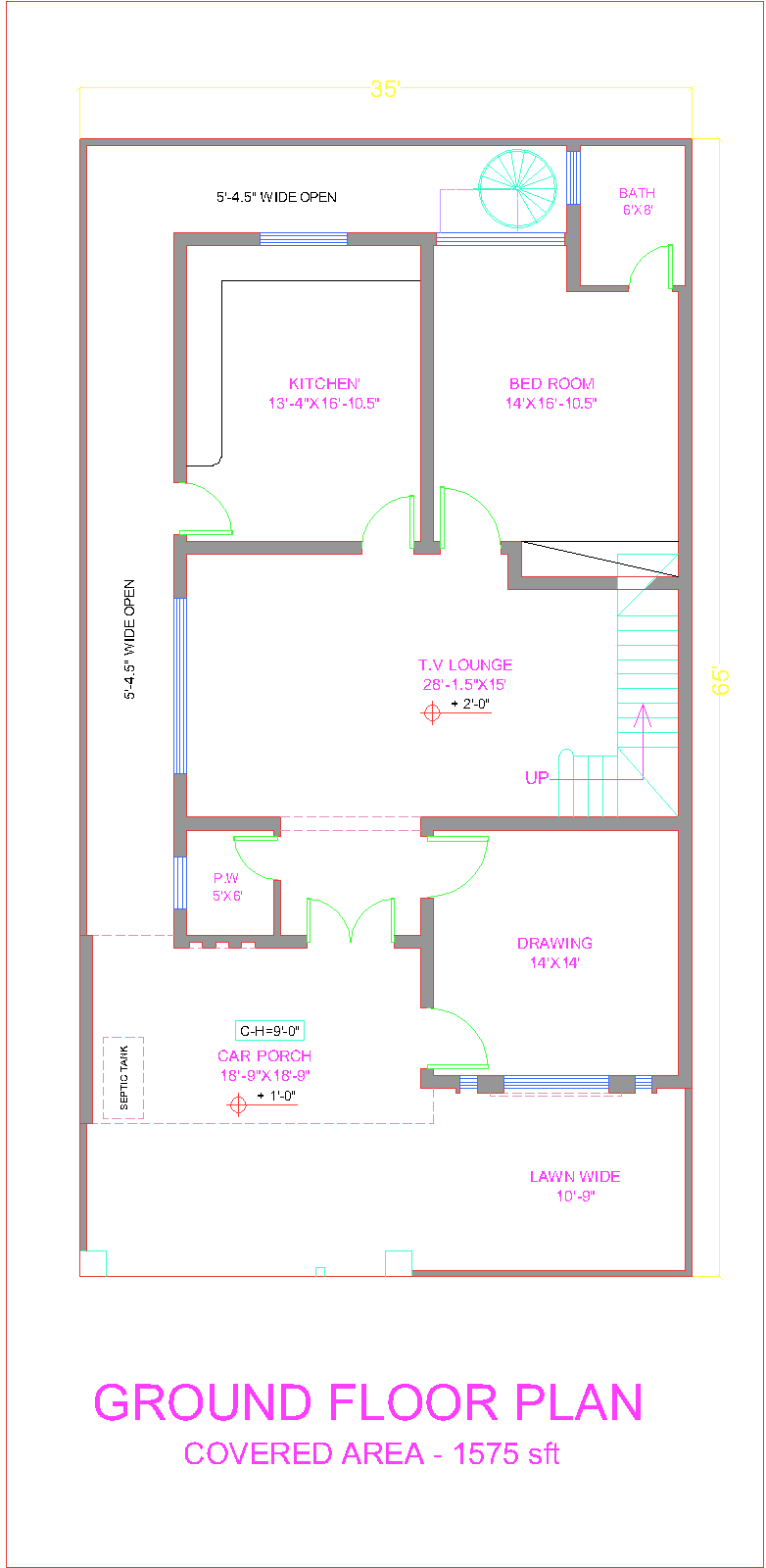
Naksha 5 marla house map 3d designs samples. This is a standard size house in india pakistan and bangladesh. So a 5 marla house plan is equal to 1125 square feet and when we create their factors we get the most common size of a 5 marla house plan is 2545 feet. 25x50 house plan 5 marla house plan architectural drawings map naksha 3d design 2d drawings design plan your house and building modern style and design your house and building with 3d view. The marla was standardized under british rule to be equal to the square rod or 27225 square feet 3025 square yards or 252929 square metres.
Renovation of you house. 5 marla house plans marla is a traditional unit of area that was used in pakistan indiaand bangladesh. 25x50 house plan 5 marla house plan architectural drawings map naksha 3d design 2d drawings design plan your house and building modern style and design your house and building with 3d view. 5 marla home interior design 5 marla home plans 5 marla home map 5 marla home naksha 5 marla house naksha in pakistan 5 marla house naksha 5 marla house naqsha 5.
See more ideas about 5 marla house plan house plans 3d house plans. Oct 7 2017 explore mohammad jahangirs board 5 marla house plan on pinterest.






























































































